The design for our house came together quickly, because it was so simple. In fact, we kept thinking that whatever form it took the house would never be simple enough. Each item that went into the house was going to cost us, so we didn’t want a wall or a door or even an electrical outlet that we didn’t need. It’s one of the reasons we chose A-1, because every plank and screw is subject to our approval, and while the simplicity of our basic idea made it quick and easy to plan, refining the design took a bit more time.
The initial estimate was close to ¥14 million, which is reasonable but more than we originally wanted to pay given what the land had cost us. The basic A-1 design our plan was based on was less than ¥11 million. Most of the difference was taken up by the design fee and some custom add-ons, like the extra toilet. So we scrutinized the plans. Did we really need a door to the office on the first floor? Would a mail slot be cheaper than a mailbox? Could we find less expensive lighting fixtures on our own than the ones that A-1 would purchase through its usual supplier? Note that we weren’t being cheap for the sake of being cheap. Several decisions actually cost us more than if we had let A-1 go its normal route. The bathroom on the second floor did not have a standard vanity unit, which would have been cheaper than the built-in sink and mirror combo we demanded. We hate bathroom vanities, but essentially it was keeping things simple that made us chose the combo. We gave in to the unit bath because on further inspection we didn’t think we could find a reasonably priced tradesman who could build the kind of Western bathroom we preferred. As antiseptic as we found unit baths, they tend to have more structural integrity and are longer-lasting than custom-made bathrooms, at least in Japan. And though we weren’t crazy about the standard system kitchen we felt we’d been forced to choose at Housetec, we didn’t need to buy overhead cabinets since it’s an open-style kitchen. We also opted for sliding doors for the upstairs bathroom and the downstairs toilet, and they are more expensive than conventional hinged doors. Sliding doors take up less room, and at 89 square meters comprising two floors the house doesn’t have any extra room to spare. We had already eliminated the usually requisite “balcony,” which in Japanese homes mainly functions as a clothes-hanging platform, and it saved us a lot. And since our house is essentially a big box there were fewer angles and thus less surface area. With A-1, real wood panel walls are standard, but for a bit extra you can have conventional white sheetrock walls, and for a bit less you can have OSB (oriented strand board), which we chose for the walls of the office, since they would eventually be covered by bookcases, so the look wasn’t going to be important. Originally, we opted to leave out a UHF-BS antenna unit on the roof, thinking we’d get cable or Internet TV, but after calling around to various cable and IPS companies discovered that such services weren’t yet available in our neck of the woods, which is slightly outside the Chiba New Town zone. In fact, they might not be available for some time, so we opted back in for the antenna unit, which may look sort of precarious on that nice, angled roof A-1 is building. In the name of simplicity again we asked them not to tile the genkan (foyer), but just leave it as bare concrete, and not just because it’s less money. We like bare concrete and since we included in the design a small recessed storage area just to the right of the genkan it would all be of a piece. We also wanted a lot of windows, which costs more than having less windows, though due to the usual “modular” Japanese design methodology, which bases all measurements on ikken multiples or portions of the length of a tatami (182 cm), we had to chose window sizes accordingly. Any other sizes would require custom work, which would mean going outside the modular parameters and thus cost a lot more. We’re fine with standard windows.
Another primary reason for the simplicity is that it allows us the option to change things after we move in. Once everything is built it will be expensive (not to mention stupid) to change a feature we don’t like, so rather than risk putting in something we won’t like in the long run, we’re leaving as much out as possible. Of course, we’ll be paying for whatever post-construction changes we make, but they will be easier to carry out and probably cheaper. For instance, A-1 isn’t going to do any landscaping–no concrete apron or pathway to the front door–and while those are always options they are options most homebuyers want because they think “as long as I’m building a house I should get as much done as possible.” We may be asking for trouble by leaving all that until later, but until the house is built it’s difficult to make decisions that will have a permanent effect on the look and practicality of the property as a whole.
It’s this aspect of the building process that’s been the most difficult to address. As we pointed out months ago, one way that A-1 saves money for its customers is by doing away with the kind of promotional schemes that major home builders offer in abundance, one of which is model homes. Building and maintaining model homes is expensive, and those costs eventually go into the price of the homes that people buy. A-1 doesn’t see the necessity, and neither do we given how simple we’re trying to keep things. But there is a big advantage to model homes, which is that the buyer has a much clearer idea of what things will look like once the house is finished. We don’t. A-1 has brought us photos of other houses they’ve built with similar features to ours, but our design is unique, and so these photos can only give us an idea. Take the stairway. Though we thought it might be good aesthetically to have a metal stairway put in to add some distinction, it would have been very expensive, as much as a million yen more. Young N showed up the standard wooden stairways that A-1 installs and it looked nice in the house depicted, but that house is very different from ours. The fact is, we won’t know what the place will really look like and what sort of practical improvement it will need until it’s finished, so we’d like to keep all our options open until then, when we can make choices based on reality.
All of these considerations were swirling through our heads when we met with N and Young N for the final design meeting. They said they would come to our apartment, but we decided to rent one of the meeting rooms available in our building complex. We reserved the room for two hours and though we didn’t think that much time was needed, in fact it wasn’t quite enough. Young N spent a good deal of it going through the contract item by item. As with the contract for the land, most of it was standard boring legalese that just needed to be aired, but there were terms we focused on, mainly in terms of payment. Because our loan would not actually come through until the house was ready to be occupied (meaning it passed the local authorities’ inspection) the payment schedule was important, and according to the contract A-1 would charge a penalty for every day the payment was late. Upon signing the contract the first third of the entire cost of the house was due. Then, when the roof beams were installed we would pay the second third, and the last third when the house was complete. Since we had almost ¥15 million in various savings and investment plans in Japan and were already approved for a ¥7 million loan by JA, the amount of the money wasn’t an issue. It was the timing. We had already shelled out more than ¥5 million for the land, as well as an initial payment to A-1 toward the design fee. By the time the second payment was made we may not have any liquid assets left, which means we will have to break a mutual fund or two if more money is suddenly necessary, and there are all sorts of additional, incidental expenses. The cost of digging the well, almost ¥500,000, isn’t included in the price of the house. Fortunately, the local government subsidizes cesspool installation for new properties that fall outside the city’s sewerage system, but there’s a limited amount of cash available in a given fiscal year, so we needed to apply for that as soon as possible. If we didn’t get it in time, then there’s another ¥400,000. (We later learned that Housetec would be making the application for us.) There were also going to be more taxes and registration fees that we probably hadn’t even heard of yet.
Most of the negotiation portion of our meeting with A-1 was about small things, like the number and location of electrical outlets (more difficult than you might imagine for a small house), the positioning of lighting rosettes (most of which would be used for ceiling fans, since we prefer indirect lighting), and how many antenna outlets and LAN ports we needed (two, one for the office and another for the entire upstairs, since we’ll be using wi-fi). We had them eliminate the whole category of lighting fixtures, which came to more than ¥150,000, but were confused by the line item labeled “miscellaneous costs,” which N told us was a sort of cushion for extra, unforeseen expenses. We asked how they came to a fixed price for something they didn’t know about yet, and he said it was simply based on the overall cost of the house.
We didn’t sign the contract after the meeting, deciding to wait until they sent us the new estimate incorporating the changes we discussed. Even if we had signed there and then, we wouldn’t have been locked into that price–there was a clause that said the final payment would reflect any additional changes that happened after the contract was concluded. But we wanted to see anyway, and when Young N sent us the new estimate a week later it was lower than the first estimate by several hundred thousand yen, though most of the difference was not from structural changes but from administrative costs that no longer applied. It was comforting to know we could get the price lower through our own effort, but the process is ongoing. We’re still working out which window sizes we want and whether or not we need bracket lighting attachments on the bedroom wall. These things take forever, but it’s not as if we mind.



Great to see your efforts paying off finally. I have been following you since the quake and look forward to each update.
Martin
LikeLike
Please excuse the following — it is pretty gauche to comment on someone else’s plans once they are in motion . . . but . . .
If I were building a house one thing I would plan-ahead for is rooftop PV, and for that a south-facing rooftop is desirable.
Roof pitch can be in some range, but to reduce mounting costs something approaching the actual latitude is about right AFAIK.
(Unfortunately, I now see Chiba is about 20% less PV-friendly than the sunnier parts of Japan:
so there’s that.)
A 2nd floor kitchen seems like a PITA (to transport food up and garbage down), and being right-handed I’d greatly prefer the stovetop to be to the right of the sink — and certainly away from any walls to its left. But if “the cook” is left-handed, no worries!
I’d certainly want the bath to be as close to the bedroom as possible. Then again since bathing is a night-time thing in Japan, maybe this isn’t as big a deal.
Having the washer be close to the bath certainly seems like a good plan, I recall with fondness the in-bath washer I had the use of 20-odd years ago in my first Japanese apartment.
As for the elevation, lack of eaves certainly saves money but I think you pay for that in lifetime energy and maintenance costs — eaves protect the exterior from both rain and sun.
(Here in my hometown in CA central valley some well-built custom homes from the 1970s have like 10′ overhangs, and I marvel at their construction and efficacy in keeping the house in shade)
Something that’s very nice to have on occasion is the “mud room”, though in this space budget that’s tough to fit in and will probably have to be implemented outside if wanted.
But it’s certainly great seeing what real plans look like, since I do hope this same process is in my future later this decade.
LikeLike
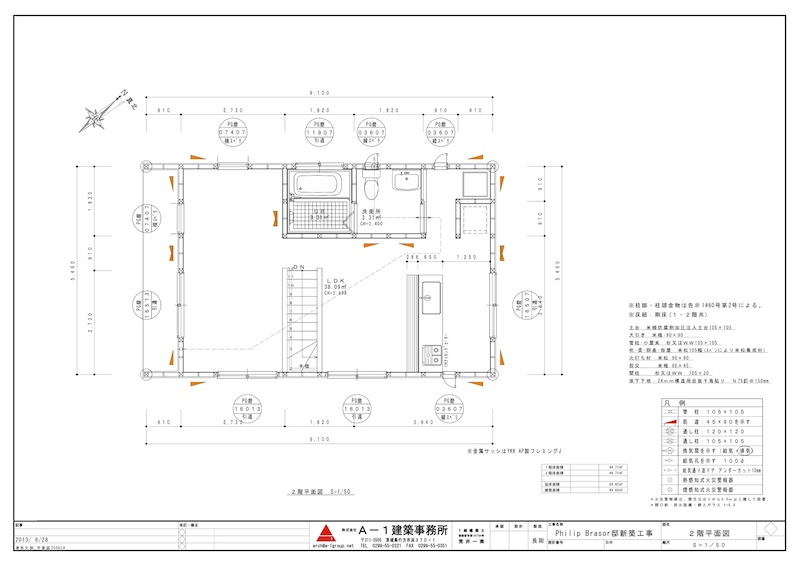
Thanks for the feedback. Most of the points you made did come into our discussions at one point or another. Our builder offered to put solar panels on the roof, which would have meant orienting the angle to face south, but once we went through the cost and how much return we could get from out local utility we figured it wasn’t worth the trouble. We’ll talk about that more in a later post. The kitchen is on the 2nd floor because we want one whole open area and we get more light on the 2nd floor (the plot is surrounded on two sides by forest); and the bathroom is on the 2nd floor because it would have taken up too much room on the first, since we put a walk-in closet next to the BR. The trickiest part of the design was addressing the small size, which is a function of our budget and the size/shape of the land. As for the PITA factor, we are counting on the constant walking up/down stairs to ward off senility and the general indignities of old age. We don’t take baths in the evening, or in the morning, for that matter. The bathroom, in fact, was a concession we still aren’t sure of. We’d prefer just a shower stall, but custom-made bathrooms are very, very expensive in Japan and somewhat dodgy. As much as we hate unit baths aesthetically, they’re engineered very well and tend to be more water-tight than tiled bathrooms. The side of the house facing south-southwest has an eave that don’t show up on the drawings. The architect said that was enough for us. He doesn’t think eaves are very effective in terms of rain, at least not for a two-story house. We plan to install awnings and “amedo” on some of the windows after we move in and see how things are. As far as a mud room goes, we do have that small alcove off the genkan, which will have sort of a mud room function.
LikeLike
yeah, I see now that you have the nice eaves on the SW side.
plus (if I’m reading the picture right) the two other entrances you have on the first floor will obviate any need for more vestibule space in that ~45m2 you have to work with, hopefully you’ll have the space and budget to come up with some usable if not livable outdoor space, a true luxury wrt life in Japan.
LikeLike
Congratulations, and thanks for the floor plan. I love looking at floor plans although was a bit surprised to see the bath on the top floor. Maybe “unitto basu” resolves issues with weight and leak risks?
BTW, disagree with your statement that you are paring down even electrical outlets. With all the electro-gadgets (and necessary work equipment) proliferating today, it seems to me that one can never have too many outlets!
Good luck, and may construction go smoothly.
I too look forward to updates.
LikeLike
Good to know there is one more English speaking foreigner living in my neighborhood.
LikeLike
My American born Japanese parents passed away and my father left my brother and me a piece of property in Japan. It is in Tottori and undeveloped.. I paid a Japanese attorney to have paperwork updated before my father passed away. I was told at that time that it would be impossible to sell. I visited the area in the 1980s. I was told that we could not build a house unless we intended to live in Japan and that it was not proper to sell a family property. Both my brother and I are older with grown children. Can anyone suggest options? I doubt that we or our children will go to live there. I have even thought about our donating it for a public park or playground.
LikeLike